Weiter zum Hauptinhalt
Zurück zur Suche

Büroglück im Businesspark Bern

Büroglück im Businesspark Bern

Ort
Stauffacherstrasse 65, 3014 Bern
Art
Mieten

Über die Immobilie

**Businesspark Bern - an ruhiger Lage und dennoch zentral** 

Die Fläche bietet Ihnen folgende Vorzüge:

  • Grossraumbürofläche
  • Flexible Raumaufteilung
  • Drei separat abgetrennte Büros bzw. Sitzungszimmer
  • Separates Archiv
  • Kleine Teeküche
  • Arbeitsfläche mit Teppichboden
  • Ausbau und Gestaltungsmöglichkeiten vorhanden
  • Keller- bzw. Lagerräume können dazu gemietet werden 
  • Parkplätze und Parkbewilligungen können dazu gemietet werden

Haben wir Ihr Interesse geweckt? Kontaktieren Sie uns gerne für weitere Informationen.

  • Offerte
  • Grundriss
  • Besichtigung

Kurze Fakten

225

m2 Nutzfläche

250.—

Preis pro m2 (netto)

n. V.

Verfügbarkeit: Nach Vereinbarung

Services und Dienstleistungen

Arealgrundleistungen

Wasser & Abwasser
Winterdienst
Strom
Wärmeenergie
Logenbetrieb
Schliessmanagement
Interventionspikett & Alarmorganisation
Hauswartung
Arealsicherheit
Arealdienst
Arealbewachung

Impressionen

Gebäude 15 Fassade
Eingangsbereich
Gang
Grossraumbüro
Bürofläche
Büro 1
Büro 2
Büro 3
Archiv
Gang zu WC Küche
Küche
WC
Aussicht O1
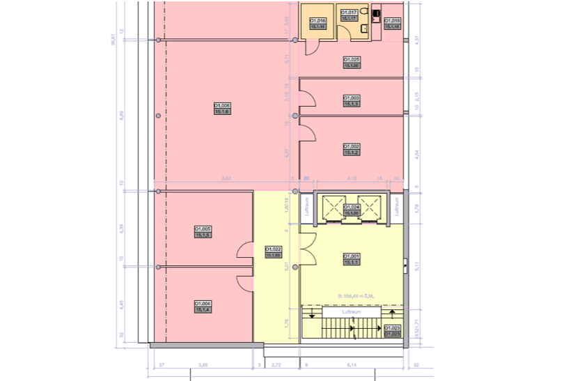
Grundriss 15O1

Kontakt

Melissa Heimberg

Kontakt

Melissa Heimberg

Property Assistant

+41 58 460 17 18

melissa.heimberg@ruag.ch

RUAG Real Estate AG
Uttigenstrasse 57
3602 Thun

Kontaktformular

Felder mit * sind erforderlich.

Standort

Stauffacherstrasse 65, 3014 Bern

E-Mail
LinkedIn
Xing
Drucker